পণ্য
100kW/225kWh/200kW এনার্জি স্টোরেজ চার্জিং স্ট্যাক (C&l পার্ক)

100kW/225kWh/200kW এনার্জি স্টোরেজ চার্জিং স্ট্যাক (C&l পার্ক)

এনার্জি স্টোরেজ পাওয়ার স্ট্যাক হল একটি অত্যন্ত সমন্বিত পাওয়ার ডিভাইস যা ফটোভোলটাইক (পিভি) ইনভার্সন, এনার্জি স্টোরেজ কনভার্সন, এনার্জি ম্যানেজমেন্ট এবং পাওয়ার ডিস্ট্রিবিউশন ফাংশনকে একক ইউনিটে একত্রিত করে। ব্যাটারি স্টোরেজের সাথে পিভি জেনারেশনকে একীভূত করে, এটি নবায়নযোগ্য শক্তির স্থানীয় খরচ, পিক শেভিং এবং ভ্যালি ফিলিং, ব্যাকআপ পাওয়ার সাপ্লাই এবং মাইক্রোগ্রিড অপারেশন সক্ষম করে।

অনুসন্ধান পাঠান

পণ্যের বর্ণনা

পণ্য বৈশিষ্ট্য

1.100kW পিসিএস শক্তি;

2.225kWh ব্যাটারি স্ট্যাক ক্ষমতা;

3. ঐচ্ছিকভাবে 1×160kW একক-বন্দুক টার্মিনাল সহ কনফিগারযোগ্য;

4. 4×40kW ডুয়াল-গান টার্মিনাল সহ ঐচ্ছিকভাবে কনফিগারযোগ্য; ঘূর্ণনশীল চার্জিংয়ের জন্য।

5. কোন অতিরিক্ত ট্রান্সফরমারের প্রয়োজন নেই, একটি স্ট্যাক সক্ষম করে নয়টি-বন্দুক অ্যাপ্লিকেশন সমর্থন করে৷



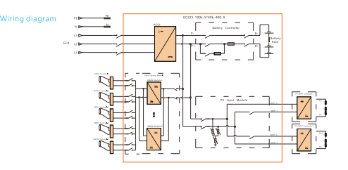
মডেল EC225-100k-5*40k-400-A

ব্যাটারি পরামিতি
কোষের ধরন LFP 314Ah
প্যাক ক্ষমতা এবং কনফিগারেশন 16.077kWh/1P16S
ব্যাটারি ক্ষমতা এবং প্যাক পরিমাণ 225kWh/14
ব্যাটারি ভোল্টেজ পরিসীমা 672V-806V
চার্জ/ডিসচার্জ সি-রেট ≤0.5C
স্রাবের গভীরতা 95% DOD
চক্র সূচক 8000cls(0.5P,25±2℃,@70%SOH)
তাপমাত্রা পর্যবেক্ষণ পয়েন্ট 112

পিভি সাইড প্যারামিটার
(MPPT আউটপুট সাইড)
সর্বোচ্চ ইনপুট শক্তি 100 কিলোওয়াট
সর্বাধিক ইনপুট বর্তমান 148A
ভোল্টেজ পরিসীমা 672V-806V

চার্জিং পরামিতি
চার্জিং শক্তি 200 কিলোওয়াট
চার্জিং পাওয়ার বরাদ্দ ডায়নামিক সুইচিং
চার্জিং বন্দুকের সংখ্যা 1×160kW একক বন্দুক+4×40kW ডুয়াল-বন্দুক সমর্থন করে

এসি সাইড প্যারামিটার
এসি রেটেড পাওয়ার 100 কিলোওয়াট
এসি সর্বোচ্চ শক্তি 110kW
এবং বর্তমান Thdi <3%
ডিসি উপাদান <0.5%lpn
সিস্টেম ভোল্টেজ মান 400V
ভোল্টেজ পরিসীমা 360VAC~440VAC
পাওয়ার ফ্যাক্টর -1~1

সিস্টেম পরামিতি
বিজ্ঞাপনের পর্দা 3"(ঐচ্ছিক)
টাচ প্যানেল 10"
নেটওয়ার্ক সংযোগের ধরন 4G/ওয়াইফাই/ইথারলিংক
পেমেন্ট পদ্ধতি অ্যাপ কার্ড প্রমাণীকরণ, ভিআইএন, অ্যাপ
গোলমাল <70dB
কুলিং সিস্টেম লিকুইড-কুলিং ব্যাটারি সিস্টেম এবং এয়ার কুলিং পাওয়ার মডিউল
আইপি গ্রেড IP55 (সম্পূর্ণ মেশিন)
অপারেটিং তাপমাত্রা -30~55℃
আপেক্ষিক আর্দ্রতা 0-95% RH, নন-কন্ডেন্সিং
মাত্রা (L*D*H) 1600×1050×2100mm
ওজন 2600 কেজি
জারা প্রতিরোধের বর্গ C3(প্রচলিত), C5(ঐচ্ছিক)



হট ট্যাগ: এনার্জি স্টোরেজ চার্জিং স্ট্যাক (C&l পার্ক) 100kW/225kWh/200kW
অনুসন্ধান পাঠান
নীচের ফর্মে আপনার তদন্ত দিতে নির্দ্বিধায় দয়া করে. আমরা আপনাকে 24 ঘন্টার মধ্যে উত্তর দেব।
X
আমরা আপনাকে একটি ভাল ব্রাউজিং অভিজ্ঞতা দিতে, সাইটের ট্র্যাফিক বিশ্লেষণ করতে এবং সামগ্রী ব্যক্তিগতকৃত করতে কুকিজ ব্যবহার করি। এই সাইটটি ব্যবহার করে, আপনি আমাদের কুকিজ ব্যবহারে সম্মত হন। গোপনীয়তা নীতি